Ihr Traum-
grundstück wartet auf Sie!
×

Ihr Traumgrundstück wartet auf Sie!

Sind Sie auf der Suche nach einem Grundstück in Mecklenburg-Vorpommern? Wir verfügen über exklusive Kontakte und helfen Ihnen gerne, Ihr perfektes Grundstück zu finden.

Jetzt anrufen und informieren!
Wir freuen uns auf Ihre Anfrage

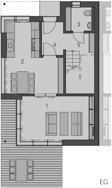
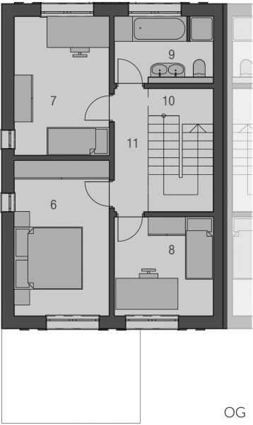
Typ Osthimmel

Wohn-Nutzfläche:
ca. 110 m2

 

Extravagant im Ausdruck präsentiert sich der Doppelhaustyp "Osthimmel". Strenge Form, ganz ohne Überstände, liebevoll gesetzte Öffnungen und reizvolle Übergänge in den Außenraum. Das Innere der Häuser setzt das innovative Formenspiel fort – minimale Verkehrsflächen, fließende Räume bis zum großzügigen Terrassenbereich. Im Obergeschoss finden drei Zimmer und ein Bad Platz. In Anordnung und Ausrichtung setzt das Doppelhaus "Osthimmel" ganz auf Einsparung von Aufwand, Außenflächen und Energie bei maximaler Privatsphäre.

Abbildungen enthalten Sonderausstattungen.

Zurück