Ihr Traum-
grundstück wartet auf Sie!
×

Ihr Traumgrundstück wartet auf Sie!

Sind Sie auf der Suche nach einem Grundstück in Mecklenburg-Vorpommern? Wir verfügen über exklusive Kontakte und helfen Ihnen gerne, Ihr perfektes Grundstück zu finden.

Jetzt anrufen und informieren!
Wir freuen uns auf Ihre Anfrage

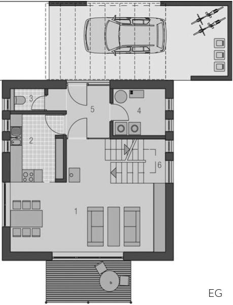
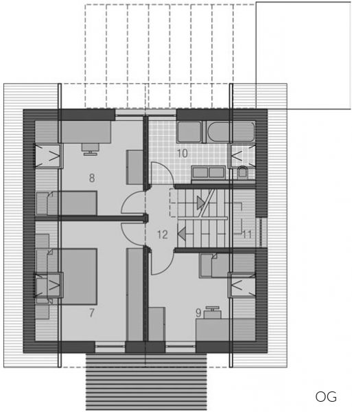
Typ Ostseeschilf

Wohn-Nutzfläche:
ca. 118 m2

 

Ein Klassiker für die junge Familie. Das Haus "Ostseeschilf" bietet im Erdgeschoss eine großzügige und flexibel gestaltbare Wohnsituation, trotz seiner kompakten Bauweise. Auch mit minimalen Verkehrsflächen wirkt das Haus dynamisch und frisch. Im Obergeschoss erlebt jedes Familienmitglied die Geborgenheit seines Rückzugsbereiches.

 

Abbildungen enthalten Sonderausstattungen.

Zurück