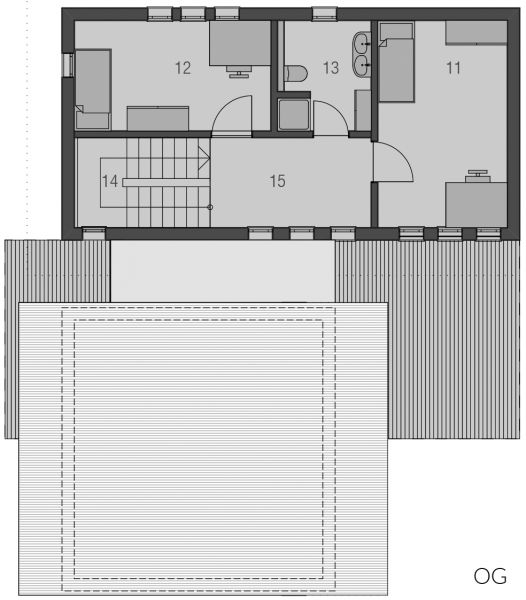
Typ Nordlicht
Wohn-Nutzfläche:
ca. 148 m2
Der Haustyp "Nordlicht" bietet viel Privatsphäre und ein differenziertes Raumprogramm. In der Fassade setzt dieser Haustyp dabei eher auf die spielerisch-moderne Kombination traditioneller Elemente. Die zwischen den Baukörpern geborgene Terrasse geht fließend in den gesonderten Wohn- Essbereich über. Im Hauptbau ist viel Platz für das Private. Elternschlafzimmer und Bad verschaffen sich angenehmen Abstand zu den öffentlicheren Bereichen – dabei bleiben sie doch auf Erdgeschossebene. Im Obergeschoss haben die Kinder ihr eigenes Reich zur freien Entfaltung.
Abbildungen enthalten Sonderausstattungen.
