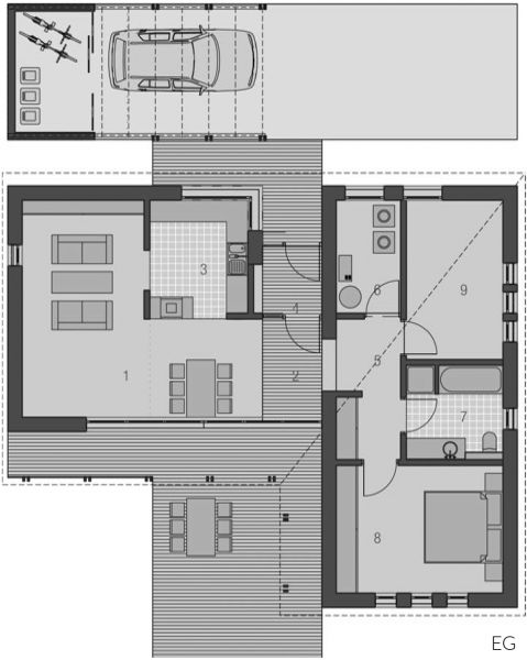
Typ Seeluft
Wohn-Nutzfläche:
ca. 95 m2
Wer hat in nicht? - Den Traum vom Sonnenuntergang auf der eigenen Veranda. Erfahren Sie die Geborgenheit eines Winkelhauses, das mit seinem geschützten Außenbereich auch für Privatsphäre sorgt. Haus "Seeluft" ermöglicht mit seinem kompakten Grundriss und den kurzen Wegen barrierefreies Wohnen auf einer Ebene. Genießen Sie Ihr komfortables und elegantes Traumhaus bis ins hohe Alter.
Abbildungen enthalten Sonderausstattungen.
