Typ Windstrom
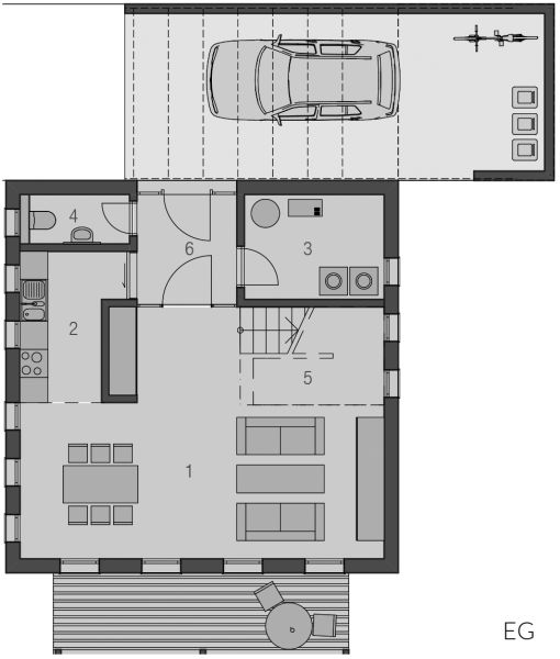
Wohn-Nutzfläche:
ca. 116 m2
Der Haustyp "Windstrom" zeichnet sich außen als klassischer Villentypus mit großem Dachüberstand und langgestreckten Fensterformaten aus, innen durch viel Raum und Licht auf kompakter Fläche. Ein offener Grundriss minimiert die Verkehrsflächen und schafft großzügige Raumsituationen, wie das zum Wohnzimmer offene, großzügig verglaste Treppenhaus. Die Ergänzung durch Terrasse und Balkon auf der dem Eingang abgewandten Seite ergänzt Baukörper und Funktion besonders reizvoll. Im Obergeschoss ist bei durchgehend voller Raumhöhe Platz für Eltern, Bad sowie zwei Kinderzimmer.
Abbildungen enthalten Sonderausstattungen.
